DRYWALL TAKEOFF SERVICES

Concrete Estimating ServicesIf you are struggling to find the best drywall takeoff services to avoid the hustle of over quoting or underquoting on your bids, we are here to help you with a highly precise and detailed drywall estimate.

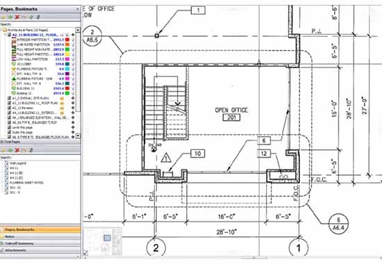
With many years of experience in the AEC industry, World Estimating features expertise in professional and comprehensive estimates and quantity takeoffs with special emphasis on accuracy for the high-end residential, commercial, and retail projects. The accuracy in our estimates is established by employing up to date zip code based pricing for material and labor. We follow the strict guidelines of the certified American estimators organization like American Association of Cost Engineers (AACE) and the Australian Institute of Quantity Surveyors (AIQS).